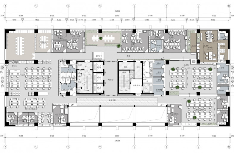
When you first enter the office area, you will be filled with eyes full of bright green. The reception area is surrounded by a green shade, in where the semi-arc wall design makes the reception space open and independent, and arc ceiling sockets above the space makes full use of the advantage of lifting design to make the space more flexible. The overall office space mainly use white and burlywood as the main colour, and the green moss and ferns are integrated into every corner of the space. Each area is flexibly divided and connected by a box-shaped space block, making it a whole and private. When you walk here, it's like walking into a secret forest world.
XIAMEN HongXuDa office
FANCY

1 / 10