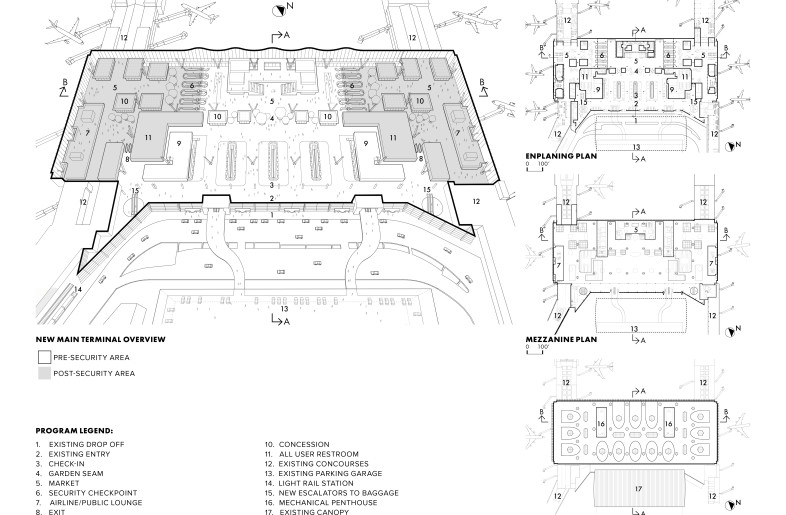
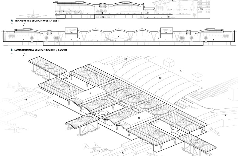
Designed to evoke the feeling of a walk in the forest, the new main terminal at Portland International Airport (PDX) transcends functionality and imbues travelers with a feeling reminiscent of the natural beauty and awe of Oregon’s landscape. The soaring 9-acre mass timber roof reflects the region’s spirit of craftsmanship and ingenuity. It also celebrates Oregon’s forest products industry by showcasing wood locally sourced from landowners and mills within a 300-mile radius of the airport, including small landowners, tribal lands, and community forests practicing sustainable forestry. Just like the farm-to-table concept, a forest-to-frame specification was created to track as much of the wood as possible back to its forest of origin.
The project approach to expand PDX in-place followed a distinct vision: Keep the terminal operational, lead in sustainability, create flexible and adaptable architecture to futureproof operations as aviation technology and processes evolve, enhance the passenger experience, provide clear wayfinding and most of all, keep the local community vibe. A unique modular roof prefabricated adjacent the terminal then transported and reassembled over the existing infrastructure allowed PDX to remain fully operational during construction. A 66% reduction in embodied carbon was achieved by reusing significant parts of the existing terminal. Since PDX is in the Cascadia subduction zone, the terminal is engineered to be seismically resilient and handle a magnitude-9 earthquake.
Taking cues from Portland’s own urban planning - small pedestrian-friendly city blocks, forests and parks - the terminal’s interior layout and design feels like a familiar and vibrant Portland neighborhood. Biophilic design strategies were applied by harvesting daylight, incorporating natural materials and planting 70+ trees and 5,000 smaller plants that create a sense of wandering through forests and aide clear wayfinding that guides passengers through security to their departure gates. The verdant nature-inspired interior calms passengers and reduces stress common to modern air travelers. Passenger and employee comfort was fine-tuned through a responsive building enclosure and HVAC integration that provides thermal comfort for a diversity of people and seasons. To fill the gaps between industry material certification programs a custom healthy materials specification framework was used for interior finishes.
PDX is the largest public building project in Oregon’s history in terms of construction dollars and created 1,250 new full-time jobs. One measure of the regional socio-economic impact can be highlighted by the $290 million worth of contracts awarded to historically underrepresented businesses, and the replicable approach to sustainable and equitable timber sourcing now being implemented on new projects—and blueprints a new future for the global forest product industry.
Portland International Airport, New Main Terminal
ZGF Architects
Platinum
Honourable Mention
Shortlisted

1 / 19

Paolo Torri
Exhibition Design Manager
at Pedrali
8
8
8.5
9
8.38

Peter Greenberg
Partner
at Bruzkus Greenberg
An excellent and ambitious project....
9.5
10
10
10
9.88

Paul Birkhead
Cofounder and Creative Director
at Syn Retail
8.5
8
8.5
8
8.25

Ray Chou
Founder and Creative Director
at Vermilion Zhou Design Group
8
8
7.5
8
7.88

Ethan Yao
China Resources Land
at Deputy General Manager and Chief Architect of Design Management
8.5
8.5
8
8
8.25

Ali Mohammadioun
Founder
at E plus A Atelier
9.5
9.5
9.5
10
9.63

Alexandra Cantacuzene
Director of Interior Design
at Al Futtaim Real Estate Group
Love it! Such an innovative and gr...
9.5
9.5
10
10
9.75

Clemence Pirajean
Cofounder
at Pirajean Lees
This airport challenges what is bei...
9.5
9.5
9
9.5
9.38
Vandana Dhawan Saxena
Founder and Design Principal
at Studio IV Designs
9.5
9.5
9.5
9
9.38

Ina Nikolova
Partner & Senior Project Manager
at Kinzo Architekten
The project blends innovation and s...
9.5
9.5
9.5
10
9.63
Designer
Client
Port of Portland
Floor area
1000000 ㎡
Completion
2024
Furniture